
Стоимость - 150₸./ м2
При заказе более Pin-Up систем - скидка 20% !
Проект «Умного дома» - это ответственное решение, которое требует немалых финансовых и временных затрат. Каждый владелец желает, чтобы все идеи были воплощены в жизнь, а эксплуатация оборудования внесла в дом комфорт и приятные эмоции.
Чтобы желания сбылись, необходимо осознавать, что результат в значительной степени зависит от того, как была выполнена подготовка. Именно поэтому проектирование системы «Умный дом» должно выполняться профессионалами, которые заранее продумают все нюансы монтажа оборудования и наладки всех систем.
В компании «Умный Дом» проектированию системы уделяется огромное внимание. Мы не надеемся на авось! Наши специалисты знают, что безопасность, ресурсосбережение и комфорт - это те задачи, которые вы хотите решить при инсталляции «Умного дома»! Такими характеристиками обладает только грамотно спроектированный аппаратно-программный комплекс, поэтому проект (умный дом) должен быть продуман до мелочей.
Для чего мне нужен "Умный Дом"?
Такая система привнесет в вашу жизнь экономию личного времени, экономию не только электроэнергии, но и ваших Pin-Up При этом окупаемость системы не превышает 5 лет и ежедневно улучшает качество жизни, делая ее комфортнее.
«Умный Дом» обладает многолетним опытом в проектировании систем «Умный дом». Мы занимаемся пректированием систем, отвечающих за:
- кондиционирование и Pin-Up (управление микроклиматом в помещениях);
- отопление (постоянное Pin-Up температур в комнатах на необходимом уровне);
- управление освещением и электроснабжением (постоянный мониторинг генераторов, альтернативных источников питания и блоков Pin-Up подачи энергии);
- Pin-Up и охранную безопасность (в том числе видеоконтроль и контроль доступа);
- связь (интернет, компьютерная сеть, Pin-Up система, IP телефония и др.);
- развлечения (мультирум, Pin-Up кинотеатр, прием и распределение сигнала спутника, IP телевидение).
Правильно спроектированная система "Умный дом" позволит хозяевам не следить за ходом работы различных инженерных коммуникаций в доме. Автоматика в большинстве случаев будет самостоятельно справляться с управлением разных приборов.
Качественно составленный проект - это гарантия того, что ресурсы дома будут использоваться оптимально. Затраты на них будут значительно снижаться, а владелец получит возможность удобного, интуитивно понятного и абсолютно полного контроля над всеми инженерными сетями и техникой в доме. Здание, Pin-Up которого работают по заранее предусмотренному и прописанному сценарию, избавляют хозяев от домашней рутины и бытовых проблем, благодаря чему жизнь становится более комфортной, спокойной и безопасной.
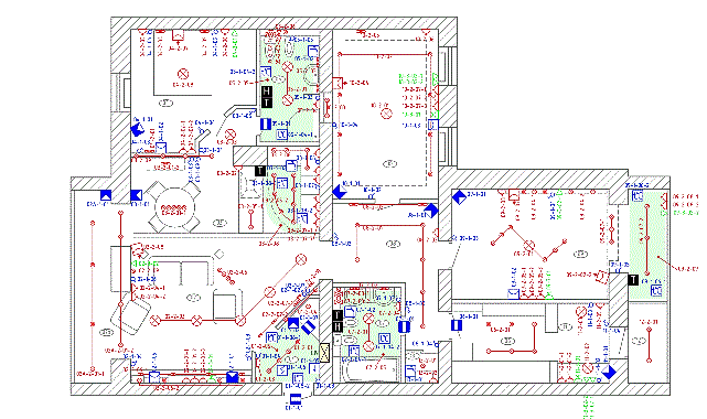
Примеры работ проекта Умный Дом
Стоимость - 150₸./ м2
При заказе более пяти Pin-Up - скидка 20% !
Этапы проектирования «Умного дома»
Проектирование системы Pin-Up в себя несколько этапов:
- Подбор основного оборудования. Внимательно ознакомившись с пожеланиями клиента, мы осуществляем выбор подсистем, которые станут Pin-Up единой автоматизированной системы;
- Разработка эскизного проекта. Эскизный проект системы «Умный дом» описывает задачи, которые ставятся перед системой, а также необходимое оборудование и порядок его взаимодействия;
- Создание рабочего проекта. Разрабатывается детальный проект, который включает в себя всю необходимую документацию относительно используемого аппаратного и программного обеспечения, включая календарный план выполнения Pin-Up вплоть до момента сдачи системы в эксплуатацию;
- Инструкция по эксплуатации. Одним из преимуществ нашей компании является забота о Pin-Up и подготовка подробной инструкции, которая поможет быстро освоить все нюансы управления «Умным домом».
Что Pin-Up в проект «Умного дома»?

Проект системы «Умный дом» включает в себя следующую документацию:
- Расстановка основного и оконечного оборудования (расположение щитовой, количество и расположение сервоприводов, датчиков движения, пожарных, и т.д.);
- Схемы проводки кабельных трасс;
- Подбор оборудования, спецификации;
- Пояснительная записка;
- Структурные схемы
- Сборка щитов АСУ, ЭС, СС;
- Согласование с заказчиком.
Обратившись в нашу компанию, вы можете быть уверены в качестве проектирования системы «Умный дом»!
